Đà Nẵng Panoma 2
Căn hộ 12A03 82.2m²
6.X tỷ (~7X M/m²)
Zalo WhatsApp Ưu tiên nhắn tin 0934987446

Cơ hội

Dự án bị hủy — nắm bắt cơ hội

Kế hoạch chuyển đổi bố cục 3 phòng ngủ ban đầu thành căn hộ 1 phòng ngủ đã bị hủy bỏ do những hoàn cảnh không lường trước được.

Căn hộ thuộc sở hữu của chủ nhân người nước ngoài; xem điều kiện hiện tại thực tế trong các video và ảnh dưới đây.

Video tình trạng hiện tại
Cảnh dưới
Tòa nhà
Panoma 2 building
Vị trí
Location map

Tình trạng hiện tại

Real photos showing the current state of the living room, bedroom, and bathrooms with existing finishes and fixtures.

Phòng khách

Living room 1
Living room 2
Living room 3

Phòng ngủ

Bedroom 1
Bedroom 2
Bedroom 3

Phòng tắm

Bathroom 1
Bathroom 2
Bathroom 3

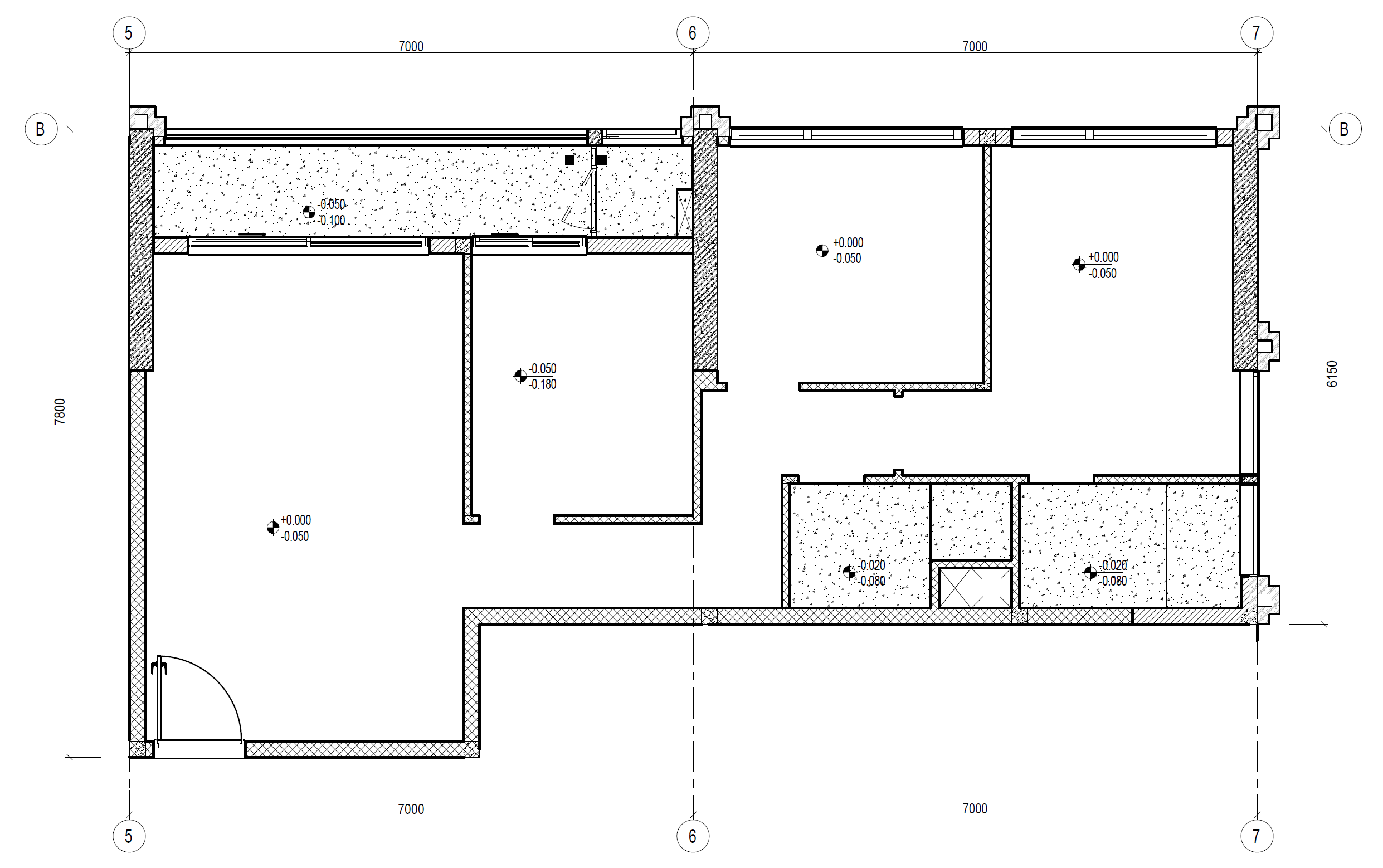
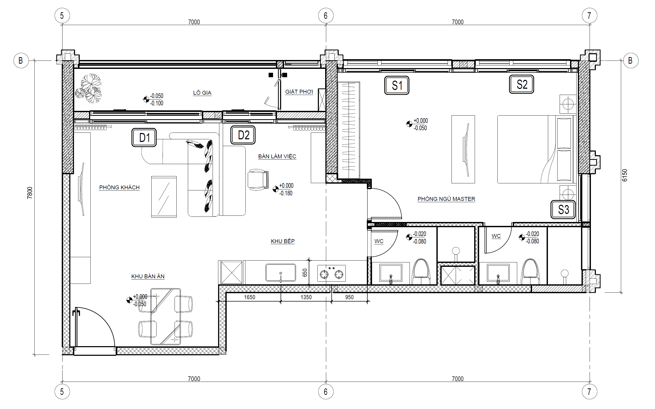
Bố cục ban đầu so với bố cục hiện tại

Floor plans and walkthrough videos showing the original 3-bedroom layout and current renovated state.

Bố cục ban đầu

Kế hoạch + video trạng thái ban đầu.

Kế hoạch ban đầu
Original layout plan
Video trạng thái ban đầu

Bố cục hiện tại

Kế hoạch + video bố cục hiện tại.

Kế hoạch hiện tại
Current layout plan
Video bố cục hiện tại

Phòng tắm đã hoàn thành & hoạt động

High-quality materials (usable & installable). Invoice link placeholder: View bathroom invoices

Giá trị gói phòng tắm

57,142,100 VND

(from Hafele quote)

Các mục bao gồm (danh sách)

  • 495.60.105 — Shower set (black) ×2
  • 589.15.035 — Exposed mixer (2 water lines) KOBE black ×2
  • 588.79.412 — One-piece toilet KOBE ×2
  • 485.95.078 — Bidet spray AIRSENSE ×2
  • 589.25.848 — Pop-up waste for overflow basin ×2
  • 589.15.030 — Mixer tap (black) ×2
  • 495.61.241 — P-trap ×2
  • 588.79.014 — Undermount ceramic basin Sapporo 545 ×2
  • 499.98.350 — Bathroom accessories pack ×2

Chi tiết hóa đơn (bảng)

Mục Số lượng Tổng cộng (VND)
495.60.105 Shower set (black) 2 12,282,840
589.15.035 Exposed mixer (KOBE black) 2 9,664,160
588.79.412 One-piece toilet KOBE 2 17,402,900
485.95.078 Bidet spray AIRSENSE 2 899,640
589.25.848 Pop-up waste (overflow basin) 2 1,046,520
589.15.030 Mixer tap (black) 2 6,325,870
495.61.241 P-trap 2 1,295,230
588.79.014 Undermount basin Sapporo 545 2 4,839,900
499.98.350 Bathroom accessories pack 2 3,385,040
Tổng cộng 57,142,100

Các mục bếp chất lượng cao được bao gồm

Usable & installable items. Invoice link placeholders: View kitchen invoiceView fridge invoice

Giá trị gói bếp

49,820,000 VND

= 33,560,000 (kitchen items) + 16,260,000 (fridge)

Các mục bao gồm (danh sách)

  • AOSmith S600 water purifier — 11,700,000
  • Ariston Slim 3 water heater 30L — 3,510,000
  • Maadela sink (MDS-A8251B) — 6,450,000
  • Hafele induction hob (HCI3732A) — 8,500,000
  • Malloca built-in hood (MH90SMC) — 3,400,000
  • Kitchen faucet (Maadela MDF-570B) — listed on invoice
  • Hafele electric kettle (HS-K1704X) — listed on invoice
  • Fridge: Mitsubishi Electric MR-CGX41EN-GBK (330L) — 16,260,000

Mục bếp (bảng hóa đơn)

Mục Số lượng Tổng cộng (VND)
AOSmith S600 water purifier 1 11,700,000
Ariston Slim 3 water heater 30L 1 3,510,000
Maadela sink (MDS-A8251B) 1 6,450,000
Maadela kitchen faucet (MDF-570B) 1
Hafele induction hob (HCI3732A) 1 8,500,000
Malloca built-in hood (MH90SMC) 1 3,400,000
Hafele electric kettle (HS-K1704X) 1
Kitchen items subtotal 33,560,000

Note: some lines appear on the invoice without a visible line total. Subtotal uses the invoice total.

Tủ lạnh (bảng hóa đơn)

Mẫu Số lượng Tổng cộng (VND)
Mitsubishi Electric MR-CGX41EN-GBK (330L) 1 16,260,000
Tổng phụ tủ lạnh 16,260,000

Hệ thống điều hòa không khí Daikin MULTI NX

1 outdoor unit + 2 concealed-duct indoor units (cooling only, inverter, R32).

Total equipment cost (excl. VAT)

59,038,000 VND

Brand: Daikin

System type: MULTI NX (multi-split), inverter, R32, cooling-only, 1-phase power.

Configuration: 1 outdoor unit + 2 concealed-duct indoor units.

Notes & recommendations

The outdoor MULTI NX unit can very likely be reused in a future layout or sold as a valuable asset.

If the two concealed-duct indoor units are not needed, it is recommended to list and sell them separately (Daikin brand, concealed-duct type, inverter, R32).

Invoice / quotation scan

Open detailed AC quotation (JPG)
Hệ thống điều hòa
Daikin MULTI NX AC system

Equipment breakdown (excl. VAT)

Unit Model Capacity Qty Amount (VND)
Outdoor 5MKM100RVMV 10 kW (~34,100 BTU/h) 1 38,277,000
Indoor #1 FMA71RVMV9 7.1 kW (~24,200 BTU/h) 1 11,578,000
Indoor #2 CDXM50RVMV 5.0 kW (~17,100 BTU/h) 1 9,183,000
Total (excl. VAT) 59,038,000

Cửa chất lượng cao được bao gồm

Three doors already purchased, each worth about 5 million VND (total ~15 million VND). Can be reused in a future layout or sold separately.

Doors in packaging
Door material close-up

Extra window layers (Eurowindows) — 160,000,000 VND

Noise reduction + better thermal insulation. Tiny aesthetic issue in bedroom. Door cover removable.

  • Noise reduction
  • Better thermal insulation
  • Excellent material quality
Notes: tiny aesthetic issue in bedroom (photo) • can be removed or replaced for about 60 million VND
Double doors
Eurowindows double door 1
Double doors
Eurowindows double door 2
Aesthetic issue (bedroom)
Bedroom aesthetic issue with windows